home
projects
about
services
testimonials
contact
our socials
home
projects
about
services
testimonials
contact
our socials
Search
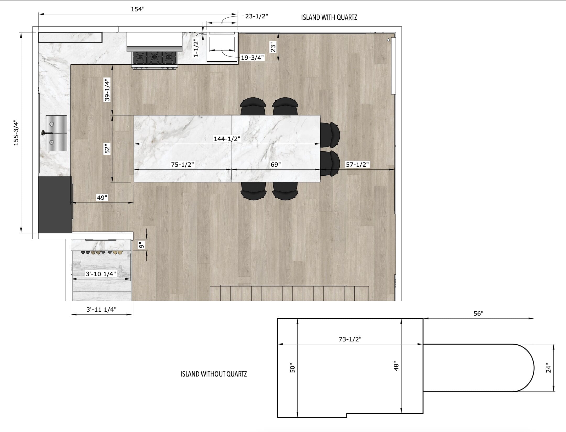
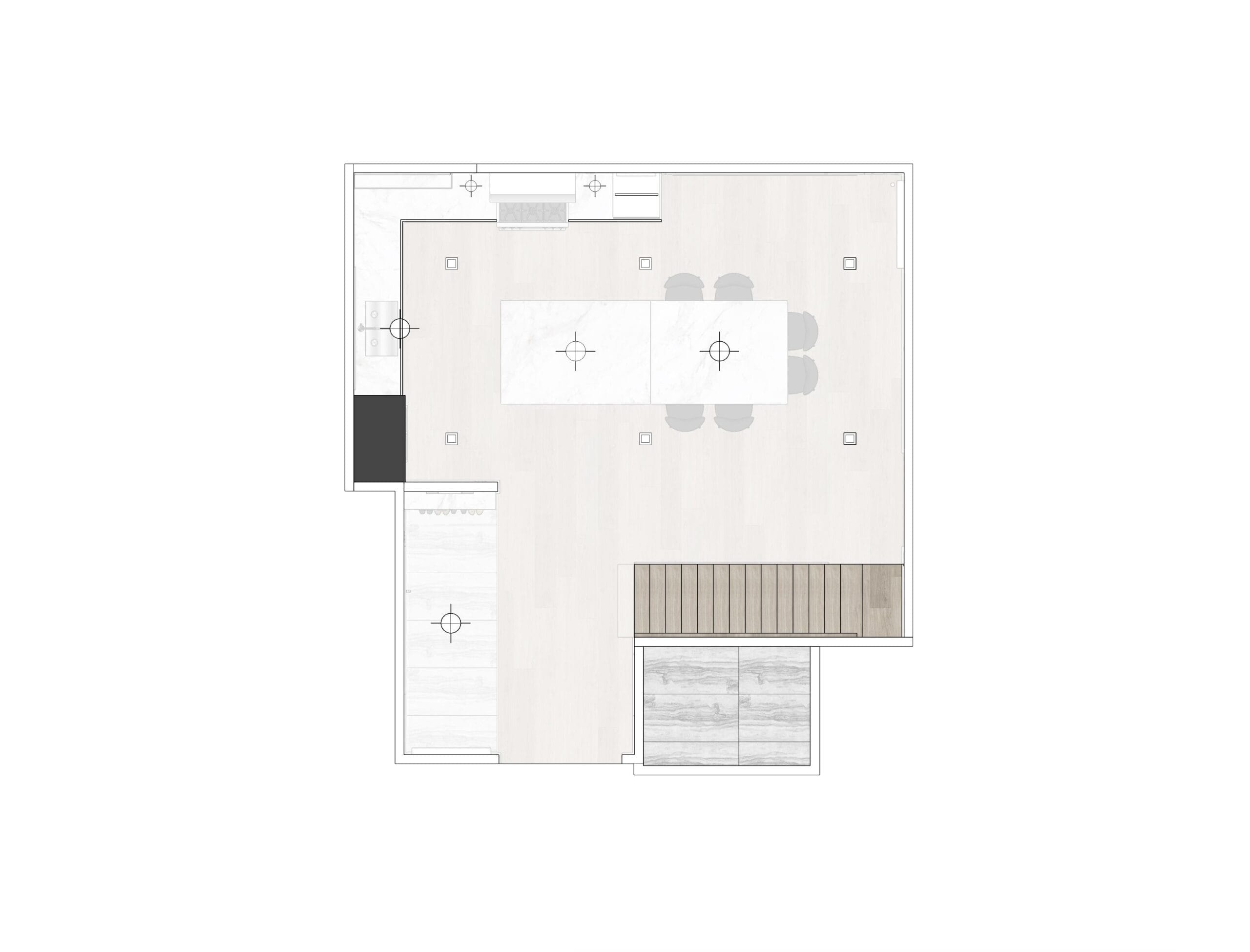
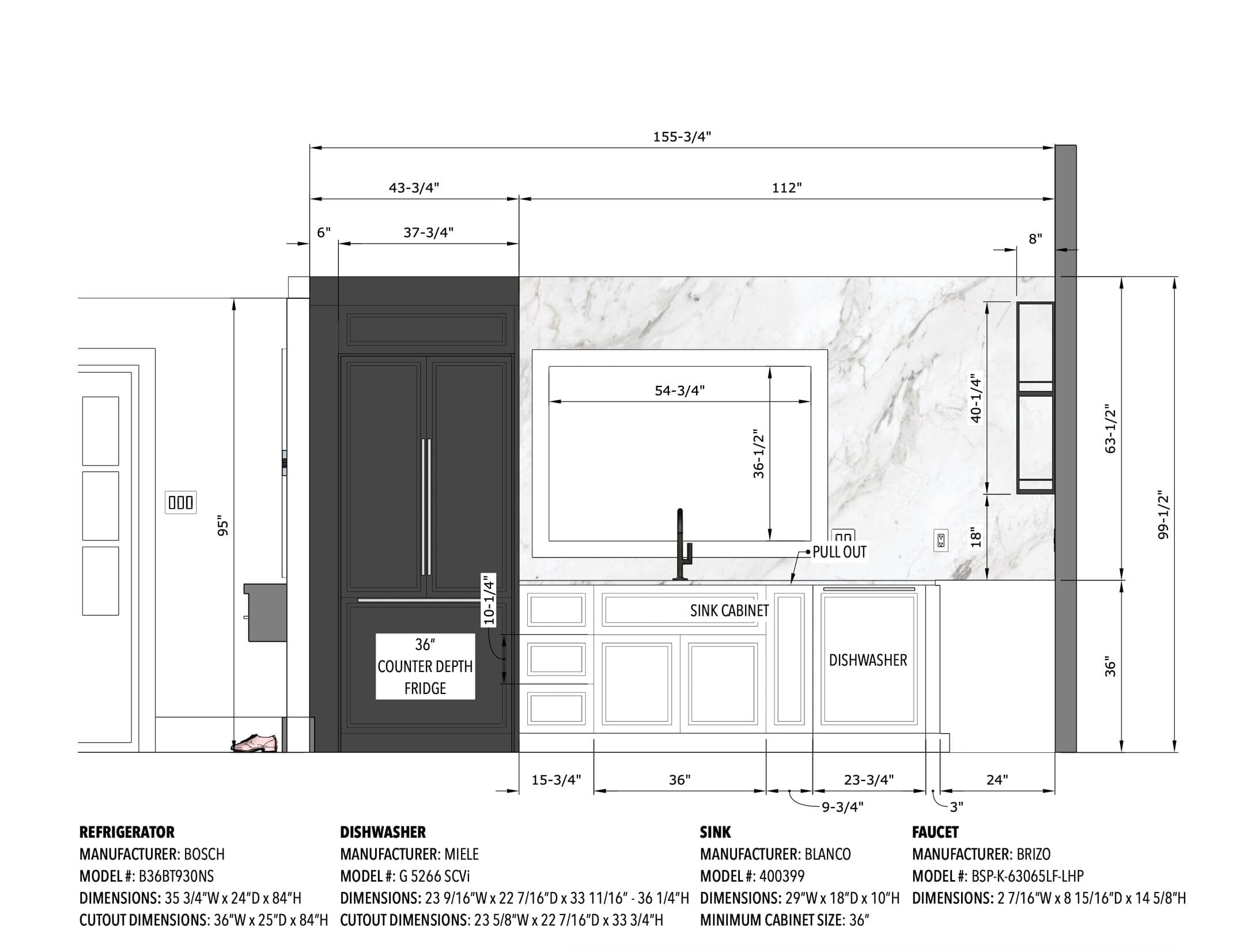
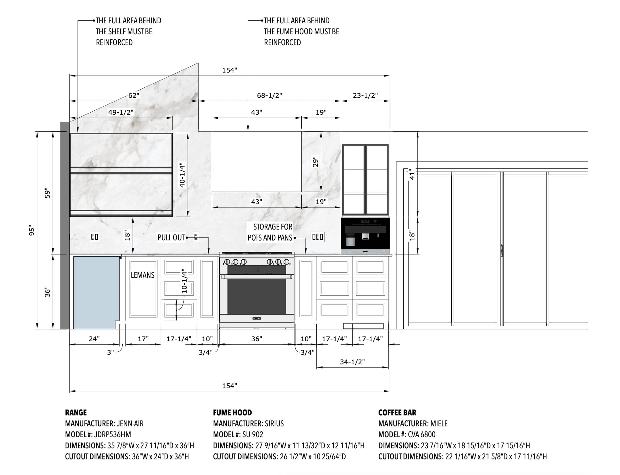
Abeille Vue: Kitchen, Foyer & Staircase
All
Renderings
Mood Boards
LET'S TALK ABOUT YOUR PROJECT
LET'S TALK ABOUT YOUR PROJECT
We would love to hear from you!
Name
Last Name
City
Phone #
Email
How can we help you?
Your desired start month/year?
How did you hear about McNeil Design Group Interiors?
Are you a Sales Rep? Company?
Email List
← OPT in to receive exclusive content
SEND NOW TO START YOUR PROJECT